Gru TBM Gru TBM Gru TBM Gru TBM Gru TBM Gru TBM Gru TBM Gru TBM Gru TBM Gru TBM Gru TBM Gru TBM Gru TBM

Carrello terminale della gru

Casa / Prodotti / Fine della carrozza / Carrello terminale della gru

Carrello terminale della gru

Prodotti

Il carrello terminale della gru è uno dei componenti importanti della struttura della gru. Fa parte del sistema di ponti gru. La sua funzione principale è sostenere il meccanismo di traslazione della gru e supportare il funzionamento complessivo della gru. Il carrello terminale della gru sostiene il carico dell'intero sistema del ponte della gru, il peso della gru stessa e il peso del carico. Ha capacità di carico e stabilità sufficienti per garantire che la gru non venga deformata o danneggiata durante il funzionamento. Questo carrello terminale della gru collabora con il sistema di binari e ruote, in modo che la gru possa scorrere agevolmente e con precisione lungo il binario. Il suo design deve garantire un buon contatto tra la ruota e la pista. Supporta il sistema di azionamento e il sistema di controllo della gru. Durante il funzionamento, il meccanismo di traslazione della gru, il motore di azionamento e altre apparecchiature sono fissati sulla trave terminale. Alcune strutture protettive sono progettate sulla trave terminale per proteggere l'impianto elettrico interno della gru, il sistema meccanico, ecc. dagli influssi ambientali esterni.

  • Specifica
  • A proposito di TBM
  • Contattaci
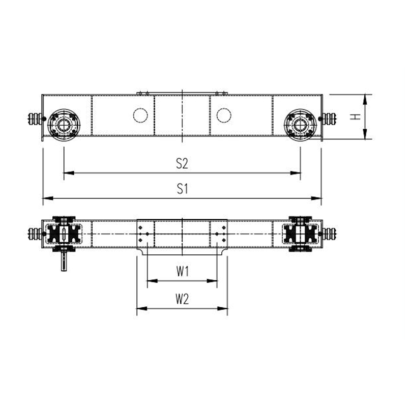
Modello Applicazione del modello di gru Specifiche del tubo quadrato Dimensioni della ruota Modello del motore S1(millimetro) S2(millimetro) L1(mm) W2(millimetro) H(mm)
UL125-15 3,2 t-7,5 m 150x200x8 U125x60 FA27-0,55kW-73 1500 1280 400 550 212.5
UL125-20 3,2 t-11,5 m 2000 1780 400 550 212.5
UL125-25 3,2 t-16,5 m 2500 2280 400 550 212.5
UL125-30 3,2 t-22,5 m 3000 2780 500 650 212.5
UL125-35 3,2 t-28,5 m 3500 3280 600 750 212.5
UL160-15 6,3 t-7,5 m 150x250x8 U160x70 FA37-0,75kW-60 1500 1200 400 550 270
UL160-20 6,3 t-11,5 m 2000 1700 400 550 270
UL160-25 6,3 t-16,5 m 2500 2200 400 550 270
UL160-30 6,3 t-22,5 m 3000 2700 500 650 270
UL160-35 6,3 t-28,5 m 3500 3200 600 750 270
UL200-20 12,5 t-11,5 m 200x300x10 U200x70 FA47-1.1kW-48 2000 1700 500 650 320
UL200-25 12,5 t-16,5 m 2500 2200 500 650 320
UL200-30 12,5 t-22,5 m 3000 2700 600 750 320
UL200-35 12,5 t-28,5 m 3500 3200 600 750 320
UL250-20 16t-11,5m 200x400x10 U250x90 FA57-1.5kW-39 2000 1600 500 650 425
UL250-25 16t-16,5m 2500 2100 600 750 425
UL250-30 16t-22,5m 3000 2600 600 750 425
UL250-35 16t-28,5m 3500 3100 700 850 425
UL315-30 20 t-16,5 m 200x400x10 U315x80 FA67-2.2kW-32 3000 2500 600 750 430
UL315-35 20 t-22,5 m 3500 3000 600 750 430
UL315-40 20t-28,5 milioni 4000 3500 700 850 430
Zhejiang Shuangniao Lifting Equipment Co., Ltd. è un'azienda di attrezzature speciali specializzata nella ricerca e sviluppo, produzione, commercializzazione e assistenza post-vendita di paranchi elettrici a fune. Fin dalla sua fondazione, l'azienda ha attribuito grande importanza allo sviluppo di nuovi prodotti e all'innovazione tecnologica e si è concentrata su punti di partenza elevati e configurazioni elevate. Nella ricerca e nello sviluppo di paranchi elettrici, introducendo continuamente tecnologie avanzate straniere, sviluppa attivamente la ricerca e lo sviluppo di nuovi paranchi elettrici in stile europeo e stabilisce il concetto centrale di "l'innovazione guida il futuro, concentrarsi sul raggiungimento di risultati meravigliosi", che è diventato la banderuola dello sviluppo dei paranchi elettrici domestici e guida lo sviluppo dell'industria dei paranchi elettrici domestici.
Chi siamo
Zhejiang Shuangniao Lifting Equipment Co., Ltd.
Zhejiang Shuangniao Lifting Equipment Co., Ltd.

Zhejiang Shuangniao Lifting Equipment Co., Ltd. è un'azienda di attrezzature speciali specializzata nella ricerca e sviluppo, produzione, commercializzazione e assistenza post-vendita di paranchi elettrici a fune. Fin dalla sua fondazione, l'azienda ha attribuito grande importanza allo sviluppo di nuovi prodotti e all'innovazione tecnologica e si è concentrata su punti di partenza elevati e configurazioni elevate. Nella ricerca e nello sviluppo di paranchi elettrici, introducendo continuamente tecnologie avanzate straniere, sviluppa attivamente la ricerca e lo sviluppo di nuovi paranchi elettrici in stile europeo e stabilisce il concetto centrale di "l'innovazione guida il futuro, concentrarsi sul raggiungimento di risultati meravigliosi", che è diventato la banderuola dello sviluppo dei paranchi elettrici domestici e guida lo sviluppo dell'industria dei paranchi elettrici domestici.

Novità